您好,欢迎光临2025新澳门原料免费更新官网!
13555571886

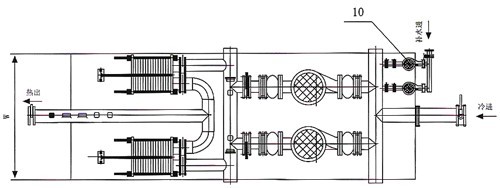
换热机组

更新时间:2022-05-31 17:07:11 点击次数:12075 次

设备概述

我公司生产的换热机组是集成了换热器,循环泵,不水泵,温度计,压力表,各种传感器,管路和阀门及工控于一体的成套区域供热设备,并加装了补水系统,定压系统,水处理系统,变频流量控制系统,热量计及网络控制通讯系统,是把大量用户现场的水泵,阀门,仪表的选择以及管道法兰焊接的工作以及电气控制的现场安装调试工作,用我公司来完成,我公司生产的各规格机组,容量从 0.2MW  15MW ,采用标准模块代设计,自由组合,以满足用户不同工况的要求,为用户提供更合理更适用的机组,在满足用户使用的要求前提下,尽可能为用户节省设备的投资。

工作原理

二次回水通过除污器后经循环泵进入板式换热器,被蒸汽或一次高温水加热,蒸汽或一次高温水进入板式换热器后,变成冷凝水回热源处,形成二个独立系统,进行间接换热,补水泵将软化水打入二次系统中维持压力稳定。

 2025新澳门原料免费更新

控制系统

1、温度控制:机组的温度控制由JCT系列恒温控制器来完成。装设在二次侧出口的温度传感器输送水温信号至恒温控制器,比较设定温度与实际温度的差别后,恒温控制器输出相应的信号至电动阀执行器,执行开关命令,调节电动阀的开启度,从而实现温度控制。恒温控制器,采用进口产品,具有控温准确稳定无故障等优点,控温精度±1.

2、压力控制:机组的压力控制由带压力传感的电接点压力表完成。电接点压力表测量系统回水压力,比较设定的上、下压力极限,并输出开关信号至电控柜,启动或关闭补水泵。系统压力低于下限压力时启动补水泵,增大压力;系统压力超出上限时,关闭补水泵。多余水量由膨胀水箱或密闭膨胀水罐吸收。

3、水泵控制:循环泵一般为二台,一用一备,具有连锁保护、轮流启动功能;电功率较大的泵采用降压启动方式;补水泵一台;电控柜装有电压表和电流表,具有故障报警和各种电器保护功能。

另外客户有特殊要求的,可按要求特殊设定。

性能特点

1、结构紧凑、占地少:借助电脑三维设计,不仅仅是简单的拼合,而是科学合理的布置各组成部件,最大限度的压缩占地面积,只占用传统安装方式1/31/8的空间。

2、性能优异:选择最相匹配的部件,从而使整个机组有极佳的性能。

3、质量可靠:每一个组成部件都经过精心设计和选型,在经过严密的工序组装和严格的质量检验,层层把关,确保100%优质。

4、节约成本:节约占地,节省大量安装成本,缩短安装时间,效益显而易见。

5、简化设计和施工:设计人员只需要选定板式换热机组,其内部组成由我们负责选型,可节省设计人员的时间。施工时,只需对应连接管道,简单,不存在安装错误。

6、便于集中管理:板式换热机组一体结构,免除用户因不同厂家产品的售后服务不一致的麻烦,由我们同意负责。

安装注意事项

1、板式换热机组安装在高出地面100mm(埋地200mm)的基础上,用橡胶垫平。

2、做基础是,规范布置机组接管和机房内管道,机组周围易保留11.5m的检修、操作空间。

3安装前严格检查机组是否有异常,确认无误后根据随机文件对应正确连接管道。

4、搬运安装时,智能在基座上这里,并应注意对机组各部件的保护。

5、根据设计规范,系统中应设置水处理器、过滤器、安全阀及排气阀等,蒸汽压力>0.6Mpa时须设减压阀。

6、动力电源(380V/50Hz,三相四线制)只需配送至电控柜即可,电控柜须可靠接地(接地电阻≤10Ω)。

7、根据实际需要,用户自行解决是否对板式换热机组管道和设备进行保温。

8、对机组及连接管道做工作压力范围内的水压实验,确认无误。

机组外形尺寸

 2025新澳门原料免费更新                  

 2025新澳门原料免费更新 


1.Y型过滤器

2.电动调节阀

3.压力表

4.温度表

5.蝶阀

6.除污器

7.循环泵

8.底座

9.板式换热器

10.补水泵


机组参数表
 采暖工况:供暖半径按1.5公里,循环泵扬程按20-30米,补水泵扬程按45米。

/水机组              一次网130/80                 二次网95/70 

2025新澳门原料免费更新